


Hubane sisehoov
Elamine looduse keskel
Sinu võimalus elada puutumatus looduskeskkonnas
Ühised puhkealad
Nautige mõisapargi ühiseid puhkealasid ja rohelust kogu perega
Loodusrikas keskkond
Elamiskeskkond kauni pargi kõrval, kus linnulaul ja loodus on osa igapäevast
Kodune ja turvaline
Privaatne ja turvaline elukeskkond, kus tunnete end alati kaitstuna

Rahu, ruum ja valgus
Kõrged laed, läbimõeldud ruumid, põhjamaine arhitektuur ja ajatu disain loovad kodu, kus perel on hea kasvada ja olla.
Moodne & Energiatõhus
A-energiaklass, maaküte, elektriautode laadimispunktid, päikesepaneelid
Suurepärane asukoht
Rongijaam, koolid lähedal, hea ühendus Tallinnaga
Mõisapark
Ainulaadne looduskeskkond, Keila jõe äärne promenaad

Kaasaegne ridaelamu

Elektriauto laadimine mugavalt kodus
Majade korruseplaanid

1. korruse plaan
Korterid ja ridaelamud

2. korruse plaan
Korterid ja ridaelamud

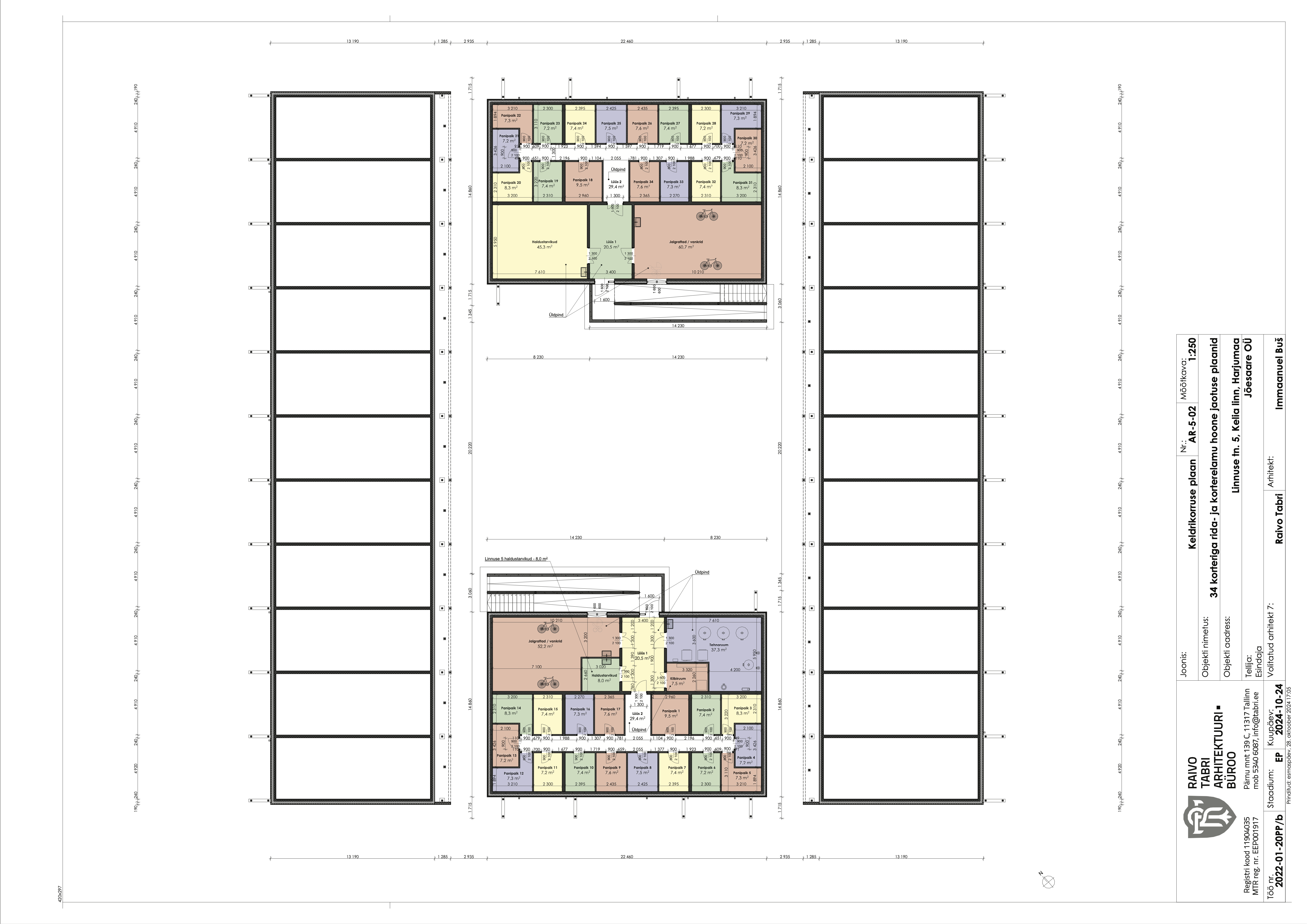
Keldrikorruse plaan
Panipaigad ja tehnoruumid

Asendiplaan
Kogu ala üldine plaan
Galerii
Tutvu Linnuse Kodud ja mõisapargi kaunite vaadete ning rajatistega











Ehituse käik
Kodud valmivad september 2026
Sinu uus algus ootab
Vali kodu, mis sobib just Sinu perele. Läbimõeldud plaanid ja aus hinnastus.
Asukoht
Linnuse tänav 5, Keila
Suurepärane ühendus looduse ja linnaga
Kaart laeb...
Keila linna ruumiline visioon
Keila ruumiline visioon käsitleb ülelinnaliselt olulisi ruumilisi põhimõtteid, mis on Keila linna üldplaneeringu lahenduste ja edasiste maakasutus- ja ehitustingimuste koostamise üldiseks aluseks.
Ruumiline visioon ei pretendeeri täpsusele, toodud on skeemid lahendusi üldistaval kujul (töö käigus on näiteks teede ja planeeritud alade asukohad ja paiknemine muutunud). Täpsemaid maakasutuse lahendusi saab vaadata üldplaneeringu joonistelt.
Müügiinfo
Anna meile oma huvist teada
Müügitingimused
- Kõik müügihinnad sisaldavad käibemaksu selle seadusega kehtivas määras.
- Ridaelamuboksi/korteri müügiks sõlmitakse ostjaga Võlaõiguslik ostu-müügileping, mille sõlmimise eelduseks on sissemakse 10% müügihinnast. Ülejäänud 90% tasutaks ridaelamuboksi/korteri valmimisel ja korteriomandi asjaõiguslepingu sõlmimisel.
Lepingu hinnas sisaldub:
- Ridaelamuboksi/korteri lõplik valmidus vastavalt projektdokumentatsioonile ning siseviimistlusspetsifikatsioonile.
- Tasu tehnovõrkude rajamise ja nendega liitumise eest sisaldub müügihinnas (elekter, vesi, kanalisatsioon, drenaaž).
- Haljastus, välisvalgustus ja kõnniteed vastavalt projektile ning mahus vastavalt kinnistule ettenähtud hoonete valmimisele sisaldub müügihinnas.
- Koduvalvesüsteemi valmidus.
- Vastavalt ridaelamuboksile/korterile 1 parkimiskoht ja 1 panipaik.
- Liitumisvalmidus telefonivõrgu ja andmeside võrguga ning valvesignalisatsiooniga.
- Parkimiskohal elektriauto laadija paigaldamise valmidus.
Lepingu hinnas ei sisaldu:
- Müügilepingu sõlmimisega seotud notaritasud ja riigilõiv (tasub ostja).
- Andmeside- või digivõrgu ja valvesignalisatsiooni teenuste lepingutega seonduvat liitumistasu.
Lisatasu eest:
- Köögimööbel koos tehnikaga
- Jahutusvalmidus (konditsioneeriks eeltööd)





